Clean Room DWG Layout 1200mm x 80mm Wall Panel Design DWG File
Description
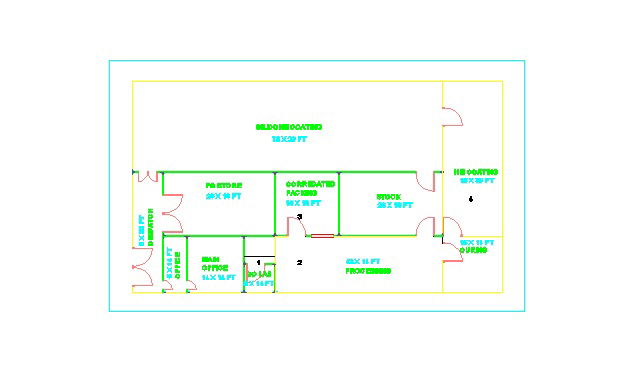
This Clean Room plan shows a detailed wall panel layout with dimensions of wall panels and clean zone arrangement designed for controlled environments. The drawing includes panel structure, spatial zones, and partition layouts with precise measurements to support HVAC and contamination control planning. Ideal for engineers, architects, and facility planners needing structured clean room design for labs, manufacturing, or medical uses.
Uploaded by:
RajaVenkateswaraRao
M

