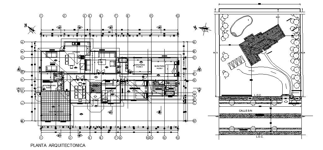
Plan of bungalow 23.40mtr x 13.63mtr with detail dimension in dwg file
Description
Plan of bungalow 23.40mtr x 13.63mtr with detail dimension in dwg file which provides detail of drawing room, bedroom, kitchen, dining room, bathroom, toilet, porch, etc it also gives detail of site plan.

Uploaded by:
Eiz
Luna

