Residential house plan with elevation and section in dwg file
Description
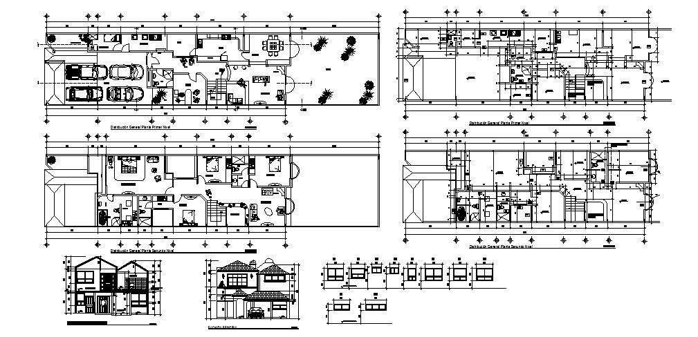
Residential house plan with elevation and section in dwg file which provides detail of drawing room, bedroom, kitchen, dining room, bathroom, toilet, it also gives detail of column.

Uploaded by:
Eiz
Luna

