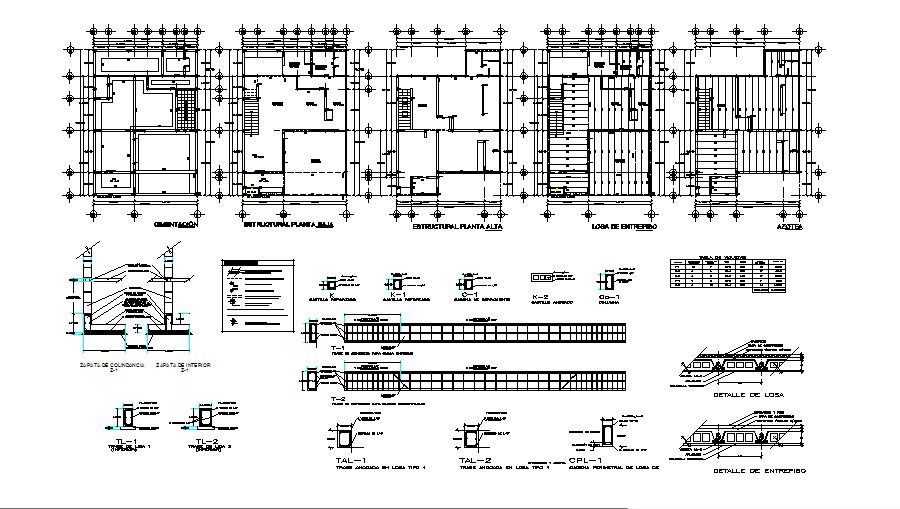
Architectural plan of house 10.00mtr x 14.00mtr with detail dimension in dwg file
Description
Architectural plan of house 10.00mtr x 14.00mtr with detail dimension in dwg file which provides detail of drawing room, bedroom, kitchen, dining room, bathroom, toilet, it also gives detail of foundation plan.

Uploaded by:
Eiz
Luna

