Autocad drawing of Apartment 11.80mtr x 12.80mtr with detail dimension
Description
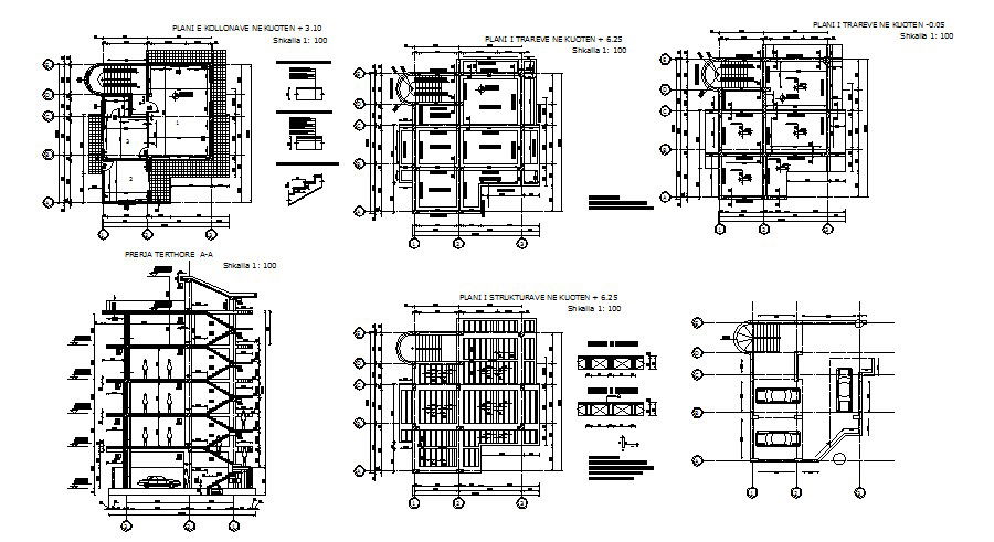
Autocad drawing of Apartment 11.80mtr x 12.80mtr with detail dimension which provides detail of drawing room, bedroom, kitchen, dining room, bathroom, toilet, etc it also gives detail of parking plan.

Uploaded by:
Eiz
Luna

