Residential apartment with furniture detail in dwg file
Description
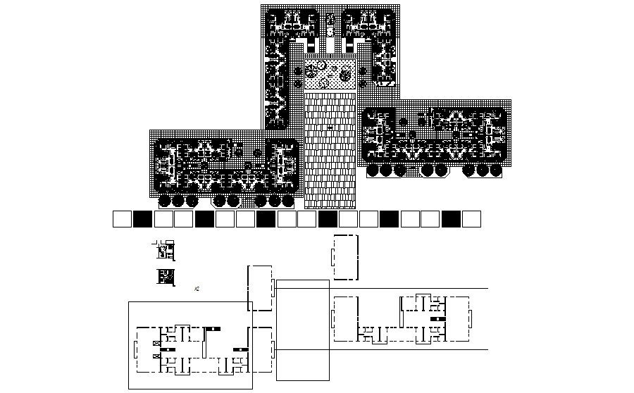
Residential apartment with furniture detail in dwg file which provides detail of drawing room, bedroom, kitchen, dining room, bathroom, toilet, etc it also gives detail of the garden area.

Uploaded by:
Eiz
Luna

