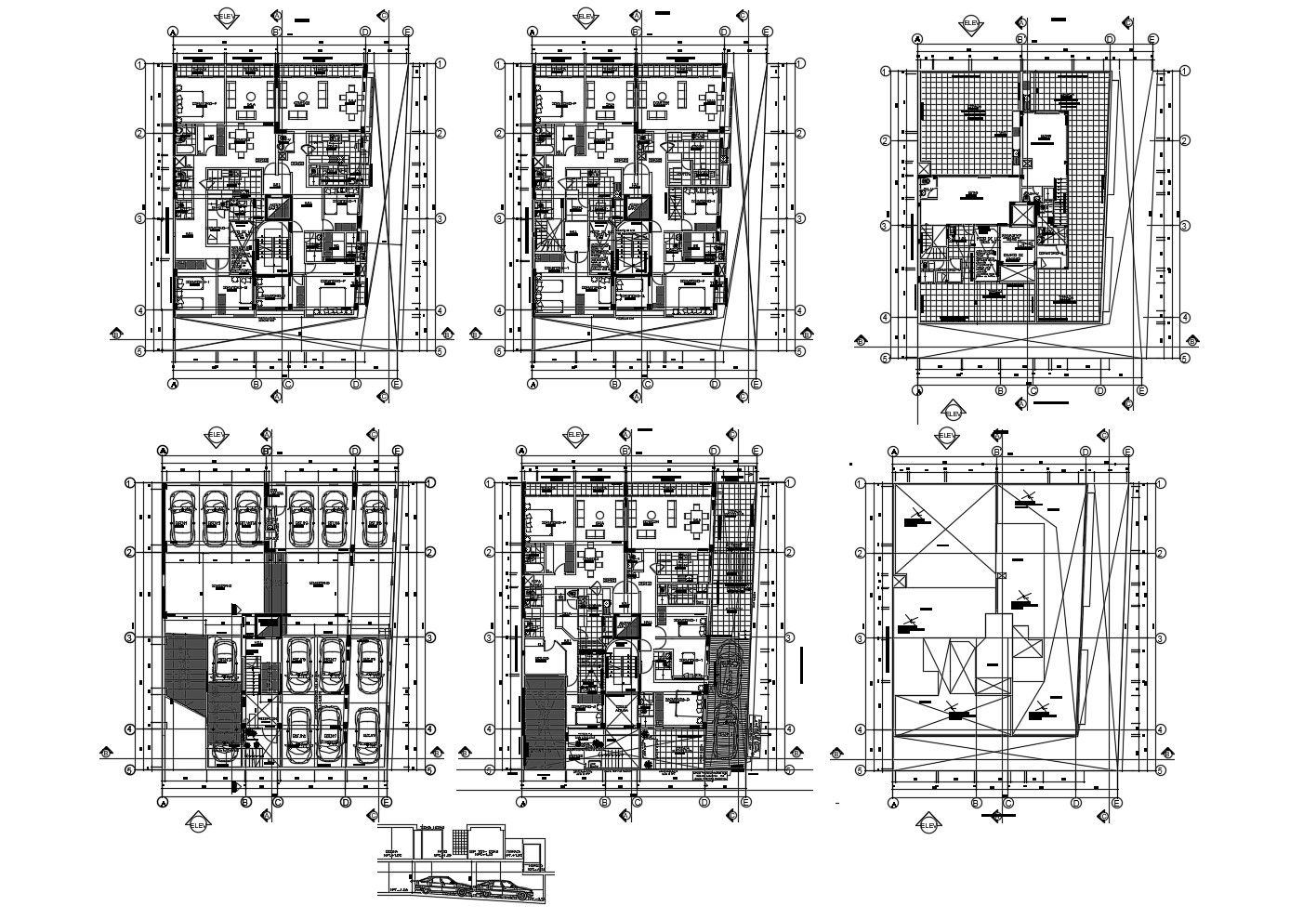
Autocad drawing of residential apartment 17.30mtr x 21.10mtr with furniture details
Description
Autocad drawing of residential apartment 17.30mtr x 21.10mtr with furniture details which provide detail of parking plan, detail dimension of the drawing room, bedroom, kitchen, dining room, bathroom, toilet, etc it also gives detail of terrace plan.

Uploaded by:
Eiz
Luna

