LOGIN
HOME
CATEGORIES
UPLOAD FILE
PRICING
HOUSE PLAN
ABOUT US
CONTACT US
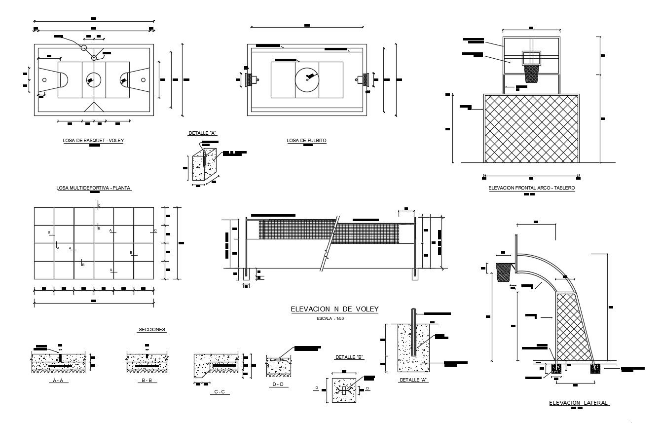
Construction detail of sports area
Home
Categories
Architecture
Sports Center
Construction detail of sports area
Uploaded by:
K.H.J
Jani
View Profile
View Profile
Description
Construction detail of sports area it includes detail include a basketball court, detail of volleyball court,etc
File Type:
DWG
File Size:
90 KB
Category::
Architecture
Sub Category::
Sports Center
type:
Gold
Uploaded by:
K.H.J
Jani
View Profile
Download
Add to libary
find Latest
Related
Files