Architectural plan of the house with furniture detail in dwg file
Description
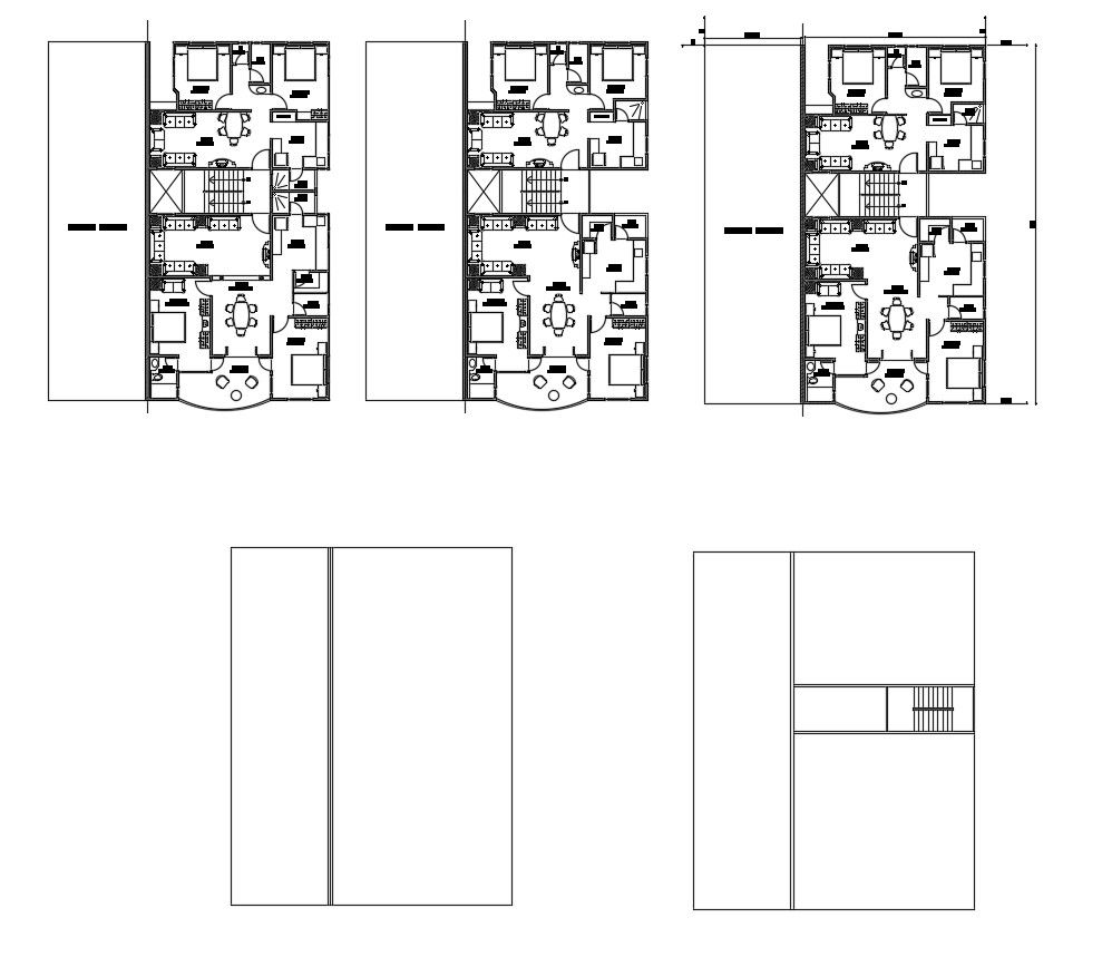
Architectural plan of the house with furniture detail in dwg file which provides detail of drawing room, bedroom, kitchen, dining room, bathroom, toilet, etc.

Uploaded by:
Eiz
Luna

