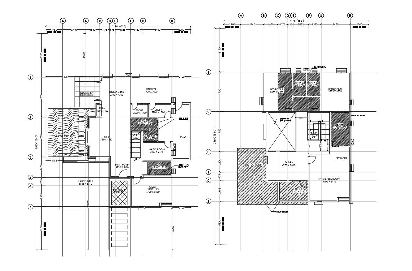
Plan of the house with detail dimension in AutoCAD
Description
Plan of the house with detail dimension in AutoCAD which includes detail of the Living room, bedroom, kitchen, dining room, bathroom, toilet, porch, etc.

Uploaded by:
Eiz
Luna

Uploaded by:
Luna