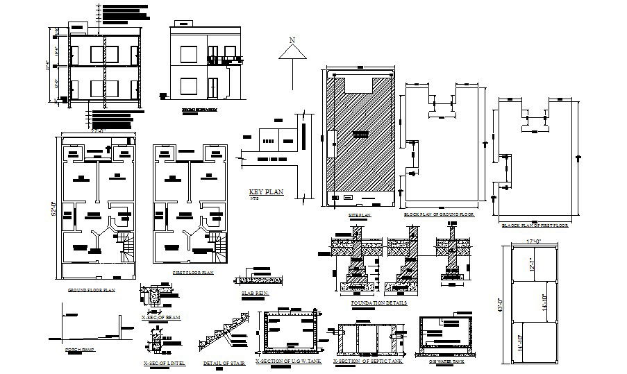
2 storey house plan with foundation details in AutoCAD
Description
2 storey house plan with foundation details in AutoCAD which provide detail of drawing room, bedroom, kitchen, dining room, bathroom, toilet, etc it also gives detail of the key plan, detail of elevation and section.

Uploaded by:
Eiz
Luna
