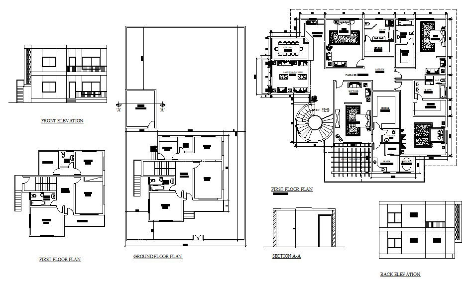
Floor plan of the apartment with furniture details in dwg file
Description
Floor plan of the apartment with furniture details in dwg file which provide detail of front elevation, back elevation, different section, detail of drawing room, bedroom, kitchen, dining room, bathroom, toilet, etc.

Uploaded by:
Eiz
Luna
