Residential house plan with section and elevation in dwg file
Description
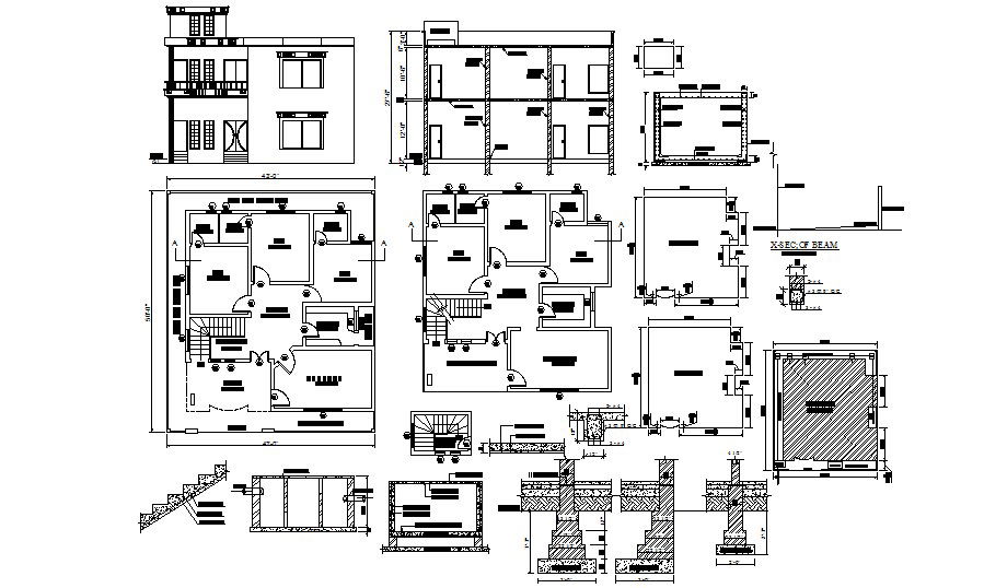
Residential house plan with section and elevation in dwg file which provides detail of drawing room, bedroom, kitchen, dining room, bathroom, toilet, etc it also includes detail of foundation structure.

Uploaded by:
Eiz
Luna

