Elevation drawing of building with detail dimension in dwg file
Description
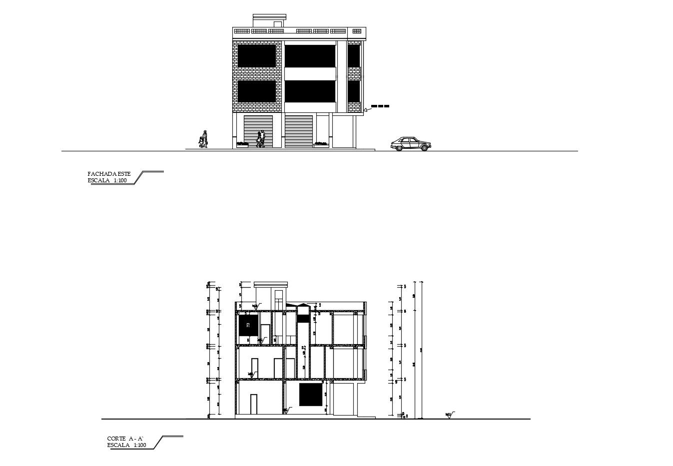
Elevation drawing of building with detail dimension in dwg file which provides detail of front elevation, detail of section, detail of floor level, etc it also gives detail of parking area.

Uploaded by:
Eiz
Luna

