Plan of residential house with detail dimension in AutoCAD
Description
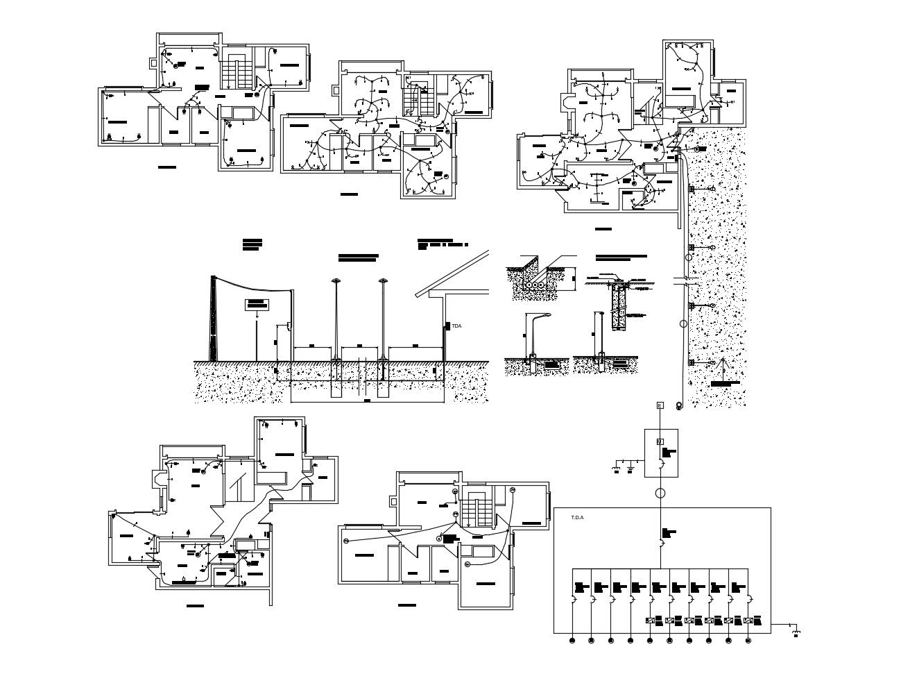
Plan of residential house with detail dimension in AutoCAD which provide detail of the living room, bedroom, kitchen, dining area, bathroom, toilet, etc it also gives detail of electric layout plan.

Uploaded by:
Eiz
Luna

