2 storey bungalow with elevation and section in dwg file
Description
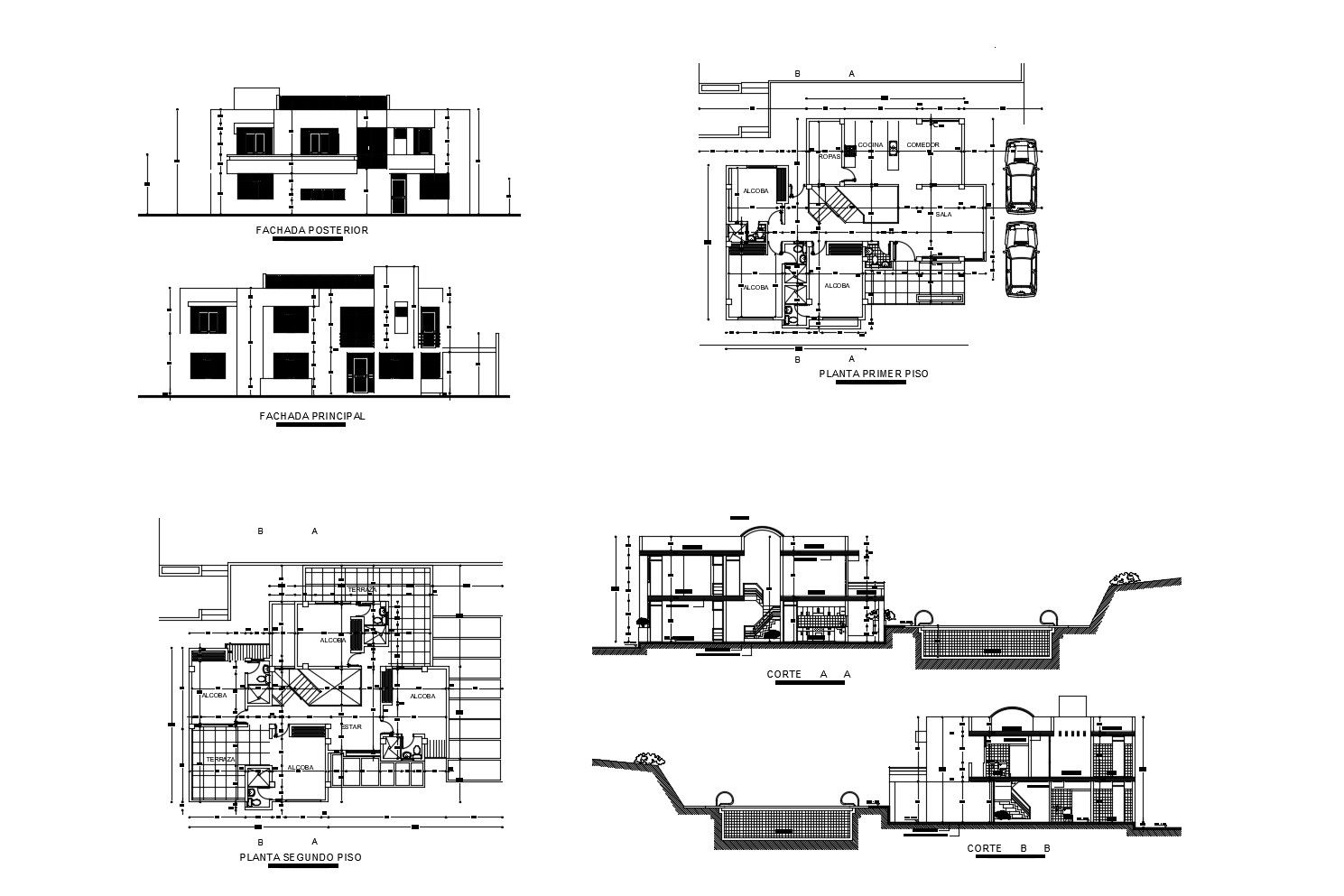
2 storey bungalow with elevation and section in dwg file which provides detail of front elevation, back elevation, detail dimension of the parking area, hall, bedroom, kitchen, dining area, WC and bath, etc.

Uploaded by:
Eiz
Luna
