Drawing of the apartment with detail dimension in dwg file
Description
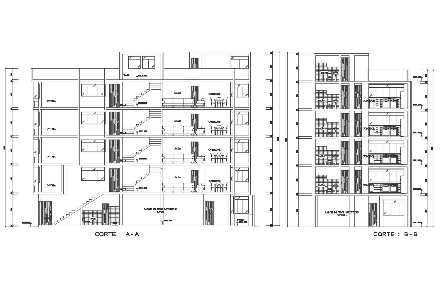
Drawing of the apartment with detail dimension in dwg file which provides detail of different section, detail of floor level, detail of doors and windows.

Uploaded by:
Eiz
Luna

Uploaded by:
Luna