Residential building with elevation in dwg file
Description
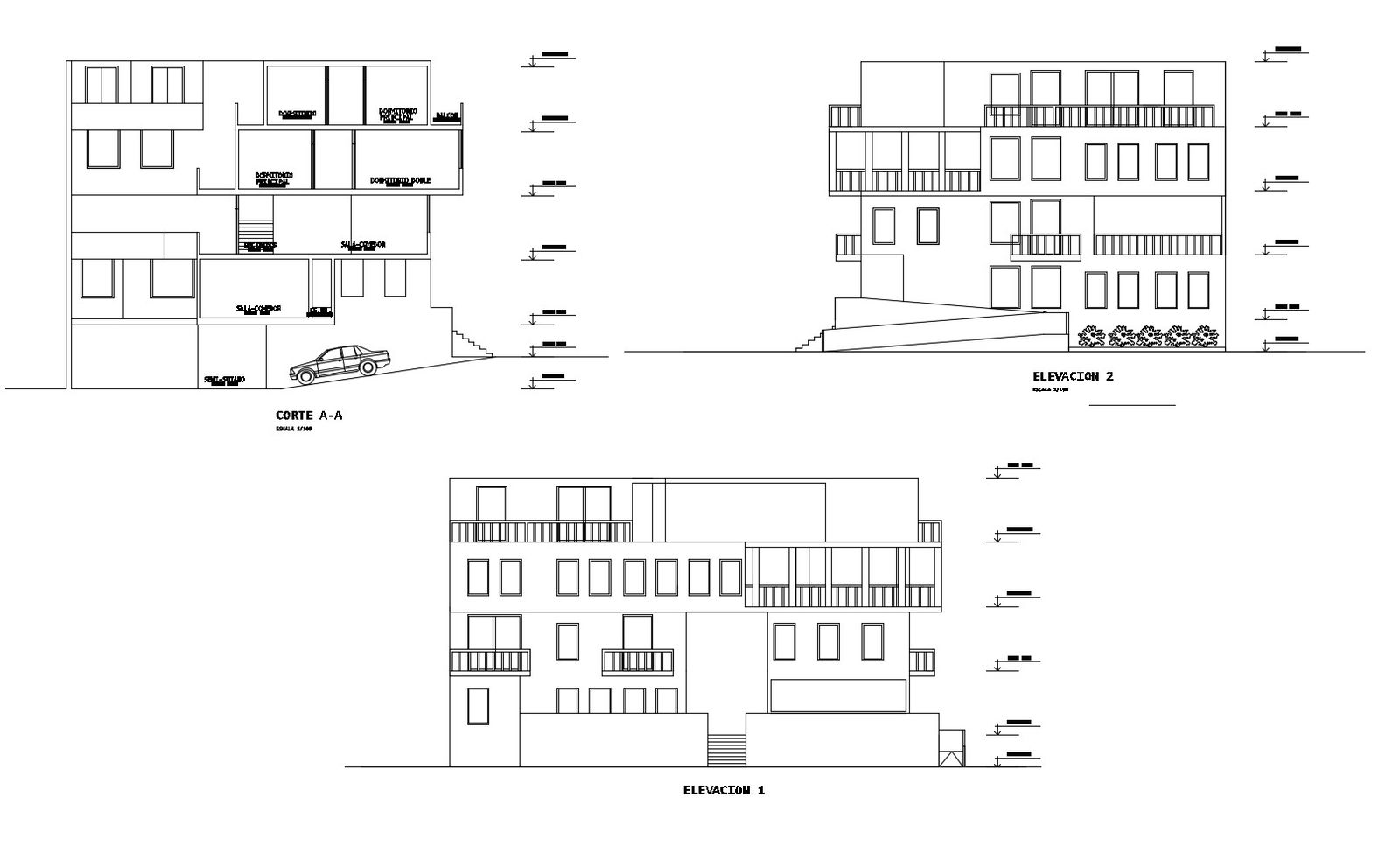
Residential building with elevation in dwg file which provides detail of front elevation, side elevation, detail of section, detail of floor level, etc.

Uploaded by:
Eiz
Luna

Uploaded by:
Luna