Elevation drawing of 2 storey house in AutoCAD
Description
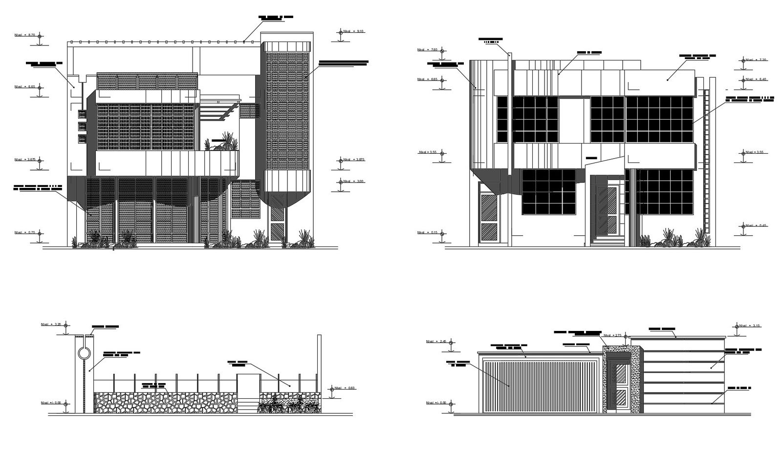
Elevation drawing of 2 storey house in AutoCAD which provide detail of front elevation, back elevation, detail of floor level, detail of doors and windows, etc.

Uploaded by:
Eiz
Luna

Uploaded by:
Luna