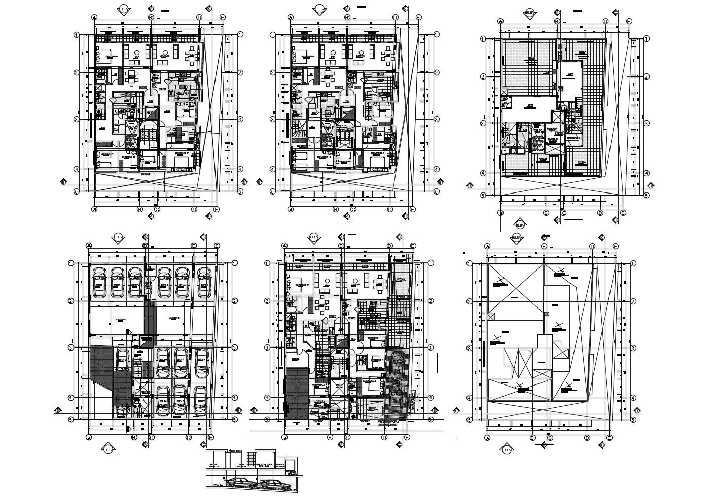
Floor plan of residential apartment 17.30mtr x 21.10mtr with detail dimension in dwg file
Description
Floor plan of residential apartment 17.30mtr x 21.10mtr with detail dimension in dwg file which provides detail of hall, bedroom, kitchen with dining area, bathroom, toilet, etc it also gives detail of roof plan, parking plan.

Uploaded by:
Eiz
Luna

