3 storey apartment with elevation and section in dwg file
Description
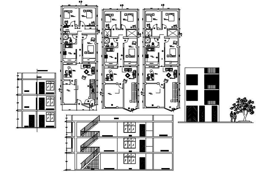
3 storey apartment with elevation and section in dwg file which provides detail of drawing room, bedroom, kitchen, dining room, bathroom, toilet, etc.

Uploaded by:
Eiz
Luna

Uploaded by:
Luna