Drawing of a row house with detail dimension in dwg file
Description
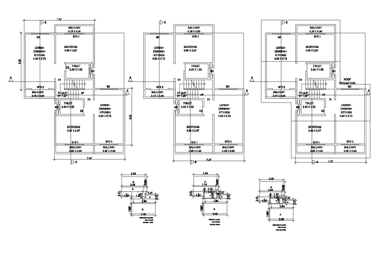
Drawing of a row house with detail dimension in dwg file which provides detail of hall, bedroom, kitchen, dining area, bathroom, toilet, etc it also gives detail of stilt floor plan, key plan.

Uploaded by:
Eiz
Luna

