Electrical layout of the residential house in dwg file
Description
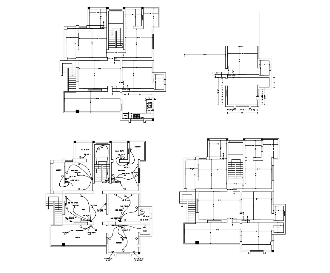
Electrical layout of the residential house in dwg file it include fan point,ceiling point,wall point,switchboard it also includes kitchen,dining area,bathroom,drawing room,bedrooms,etc
Uploaded by:
K.H.J
Jani

