Hotel building plan with detail dimension in dwg file
Description
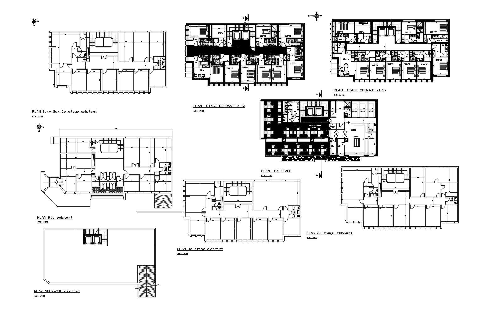
Hotel building plan with detail dimension in dwg file which provides detail dimension of restaurant area, hall, passage, bar area, rooms, washroom, toilet, etc it also gives full detail of furniture.

Uploaded by:
Eiz
Luna

