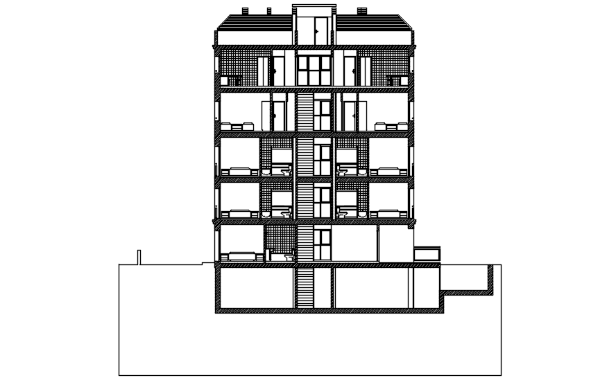
Sectional drawing of Apartment in dwg file
Description
Sectional drawing of Apartment in dwg file which provides detail of floor level, detail of hall, bedroom, dining room, etc it also gives detail of furniture.

Uploaded by:
Eiz
Luna

Uploaded by:
Luna