Floor plan of Residential home with roof plan in dwg file
Description
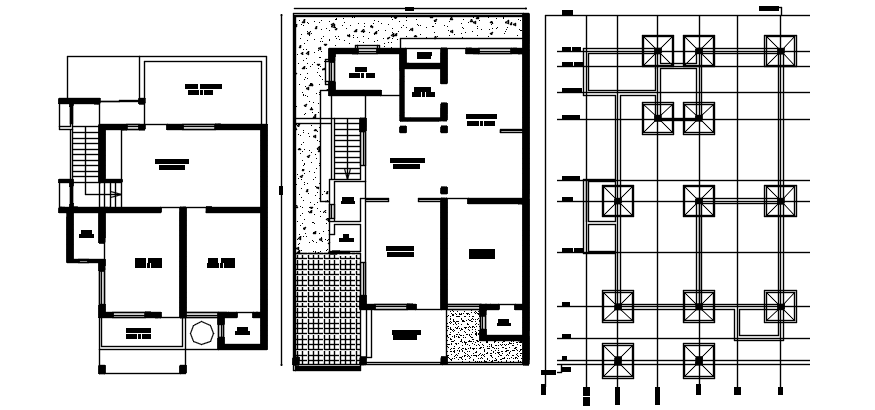
Floor plan of Residential home with roof plan in dwg file it provides detail of drawing room, bedroom, kitchen, dining room, bathroom, toilet, etc.

Uploaded by:
Eiz
Luna

Uploaded by:
Luna