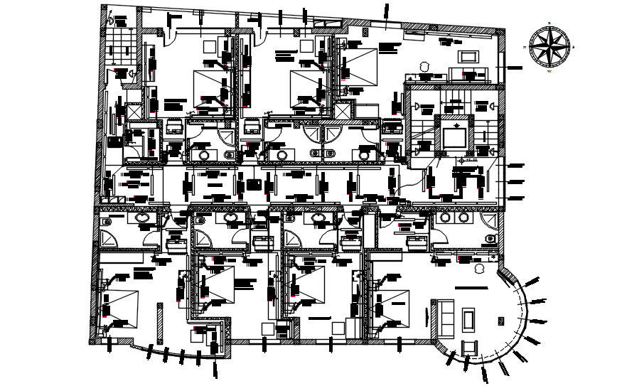
Hotel building plan with detail dimension in AutoCAD
Description
Hotel building plan with detail dimension in AutoCAD which includes detail of Hall, waiting area, rooms, washroom, toilet, etc it also gives detail of furniture.

Uploaded by:
Eiz
Luna

