2 storey house plan with furniture details in AutoCAD
Description
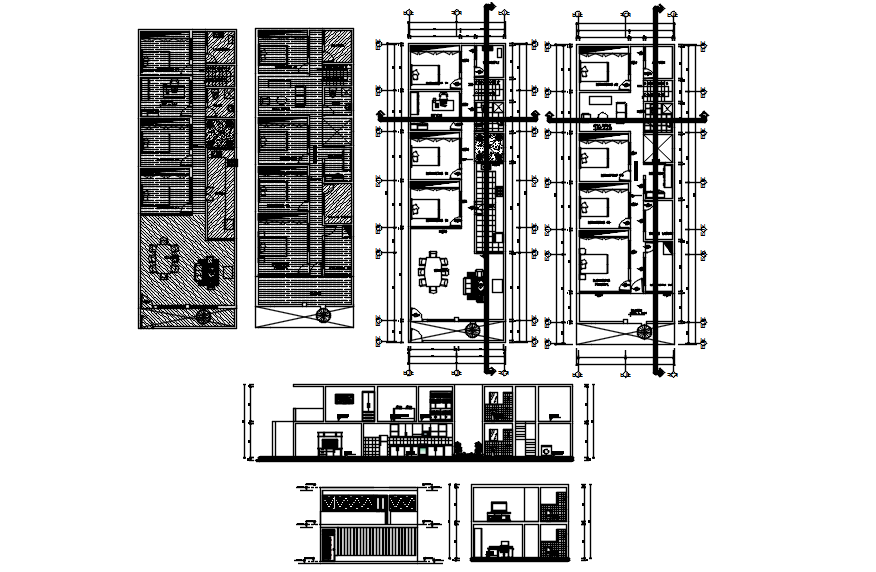
2 storey house plan with furniture details in AutoCAD which includes detail of elevation and section, detail dimension of the drawing room, bedroom, kitchen, dining room, bathroom, toilet, etc.

Uploaded by:
Eiz
Luna

