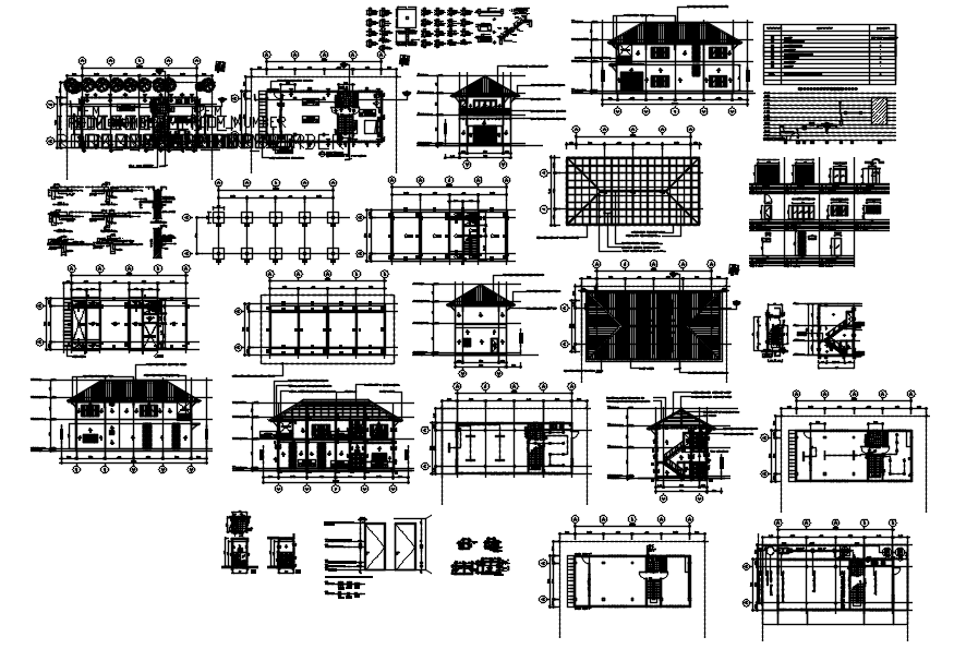
House plan Drawing with roof plan details in AutoCAD
Description
House plan Drawing with roof plan details in AutoCAD which includes detail of different elevation and section, detail dimension of the drawing room, bedroom, kitchen, dining room, bathroom, toilet, etc.

Uploaded by:
Eiz
Luna

