Drawing of 2 storey house plan 10.00mtr x 20.00mtr with furniture details in dwg file
Description
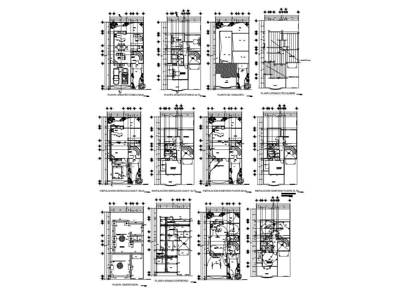
Drawing of 2 storey house plan 10.00mtr x 20.00mtr with furniture details in dwg file which provide detail of foundation plan, electric layout plan, sanitary layout plan, detail dimension of the hall, bedroom, kitchen with dining area, bathroom, toilet, garage, lawn area, etc.

Uploaded by:
Eiz
Luna

