LOGIN
HOME
CATEGORIES
UPLOAD FILE
PRICING
HOUSE PLAN
ABOUT US
CONTACT US
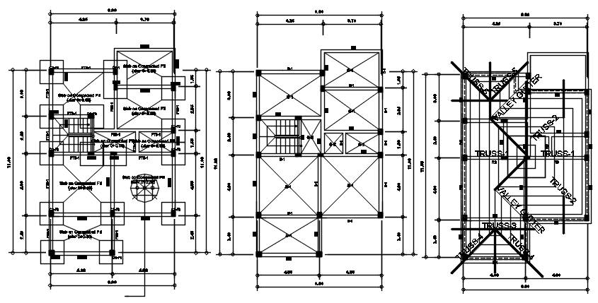
Autocad drawing of residential bungalow layout
Home
Categories
Architecture
Bungalow House Design
Autocad drawing of residential bungalow layout
Uploaded by:
K.H.J
Jani
View Profile
View Profile
Description
Autocad drawing of residential bungalow layout it include roof framing layout,foundation layout, second-floor roof framing layout,etc
File Type:
DWG
File Size:
416 KB
Category::
Architecture
Sub Category::
Bungalow House Design
type:
Gold
Uploaded by:
K.H.J
Jani
View Profile
Download
Add to libary
find Latest
Related
Files