LOGIN
HOME
CATEGORIES
UPLOAD FILE
PRICING
HOUSE PLAN
ABOUT US
CONTACT US
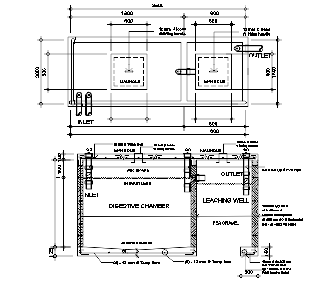
Septic tank detail in dwg file
Home
Categories
Details
Construction Details
Septic tank detail in dwg file
Uploaded by:
K.H.J
Jani
View Profile
View Profile
Description
Septic tank detail in dwg file it includes plan,section of septic plan it also includes digestive chamber,outlet,etc
File Type:
DWG
File Size:
471 KB
Category::
Details
Sub Category::
Construction Details
type:
Gold
Uploaded by:
K.H.J
Jani
View Profile
Download
Add to libary
find Latest
Related
Files