LOGIN
HOME
CATEGORIES
UPLOAD FILE
PRICING
HOUSE PLAN
ABOUT US
CONTACT US
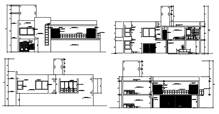
Sectional elevation of residential bunglow in dwg file
Home
Categories
Architecture
Bungalow House Design
Sectional elevation of residential bunglow in dwg file
Uploaded by:
K.H.J
Jani
View Profile
View Profile
Description
Sectional elevation of residential bunglow in dwg file it include elevations,sections,floor level,etc
File Type:
DWG
File Size:
1.5 MB
Category::
Architecture
Sub Category::
Bungalow House Design
type:
Gold
Uploaded by:
K.H.J
Jani
View Profile
Download
Add to libary
find Latest
Related
Files