LOGIN
HOME
CATEGORIES
UPLOAD FILE
PRICING
HOUSE PLAN
ABOUT US
CONTACT US
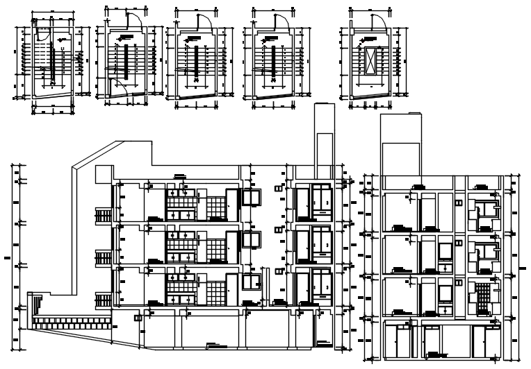
Autocad drawing of sectional elevation of the residential apartment
Home
Categories
Architecture
Apartment Drawing
Autocad drawing of sectional elevation of the residential apartment
Uploaded by:
K.H.J
Jani
View Profile
View Profile
Description
Autocad drawing of sectional elevation of the residential apartment it include section,staircase detail,floor level,etc
File Type:
DWG
File Size:
595 KB
Category::
Architecture
Sub Category::
Apartment Drawing
type:
Gold
Uploaded by:
K.H.J
Jani
View Profile
Download
Add to libary
find Latest
Related
Files