LOGIN
HOME
CATEGORIES
UPLOAD FILE
PRICING
HOUSE PLAN
ABOUT US
CONTACT US
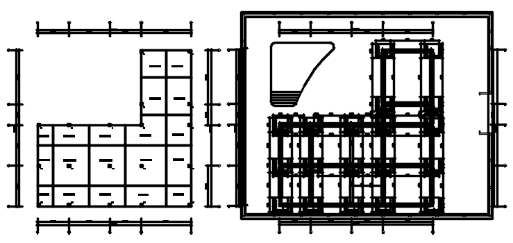
Commercial office layout in dwg file
Home
Categories
Architecture
Corporate Building
Commercial office layout in dwg file
Uploaded by:
K.H.J
Jani
View Profile
View Profile
Description
Commercial office layout in dwg file it include foundation plan,centre line plan ,etc
File Type:
DWG
File Size:
938 KB
Category::
Architecture
Sub Category::
Corporate Building
type:
Gold
Uploaded by:
K.H.J
Jani
View Profile
Download
Add to libary
find Latest
Related
Files