Design of house plan with furniture details in AutoCAD
Description
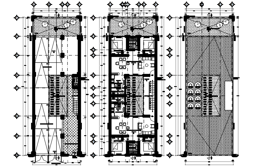
Design of house plan with furniture details in AutoCAD which provide detail of drawing room, bedroom, kitchen, dining room, bathroom, toilet, etc.

Uploaded by:
Eiz
Luna

Uploaded by:
Luna