LOGIN
HOME
CATEGORIES
UPLOAD FILE
PRICING
HOUSE PLAN
ABOUT US
CONTACT US
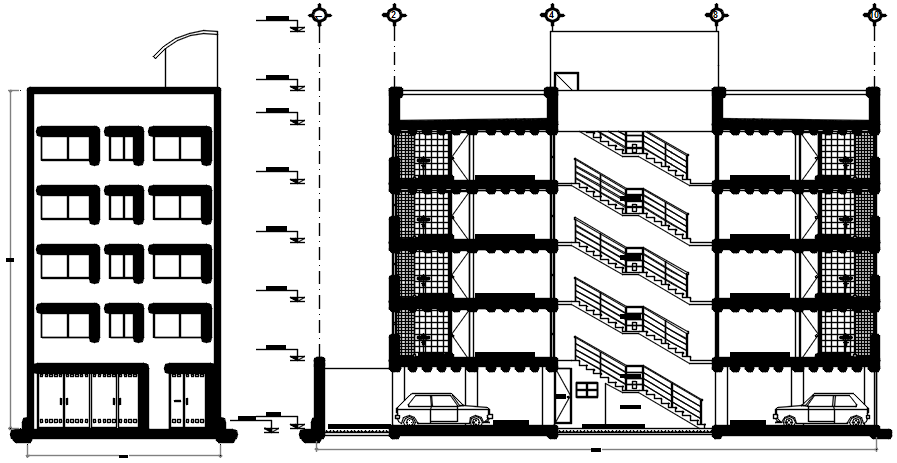
Drawing of apartment design in AutoCAD
Home
Categories
Architecture
Apartment Drawing
Drawing of apartment design in AutoCAD
Uploaded by:
Eiz
Luna
View Profile
View Profile
Description
Drawing of apartment design in AutoCAD it includes detail of front elevation, detail of section, floor level, etc.
File Type:
DWG
File Size:
307 KB
Category::
Architecture
Sub Category::
Apartment Drawing
type:
Gold
Uploaded by:
Eiz
Luna
View Profile
Download
Add to libary
find Latest
Related
Files