LOGIN
HOME
CATEGORIES
UPLOAD FILE
PRICING
HOUSE PLAN
ABOUT US
CONTACT US
Dwg file of site layout
Home
Categories
Architecture
House Plan
Dwg file of site layout
Uploaded by:
K.H.J
Jani
View Profile
View Profile
Description
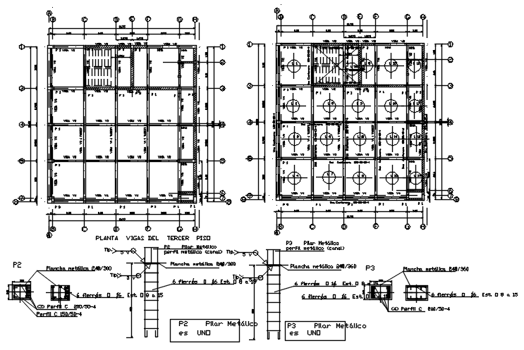
Dwg file of site layout it include site layout,construction detail,centre line plan,etc
File Type:
DWG
File Size:
771 KB
Category::
Architecture
Sub Category::
House Plan
type:
Gold
Uploaded by:
K.H.J
Jani
View Profile
Download
Add to libary
find Latest
Related
Files