LOGIN
HOME
CATEGORIES
UPLOAD FILE
PRICING
HOUSE PLAN
ABOUT US
CONTACT US
Simple House plan
Home
Categories
Architecture
House Plan
Simple House plan
Uploaded by:
Liam
White
View Profile
View Profile
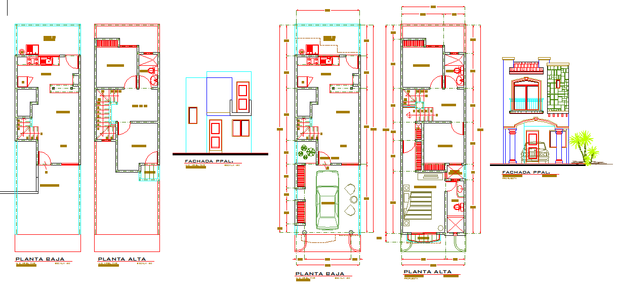
Description
The architecture layout plan of all floor with all dimension, section plan and elevation design of house.
File Type:
DWG
File Size:
229 KB
Category::
Architecture
Sub Category::
House Plan
type:
Free
Uploaded by:
Liam
White
View Profile
Download
Add to libary
find Latest
Related
Files