LOGIN
HOME
CATEGORIES
UPLOAD FILE
PRICING
HOUSE PLAN
ABOUT US
CONTACT US
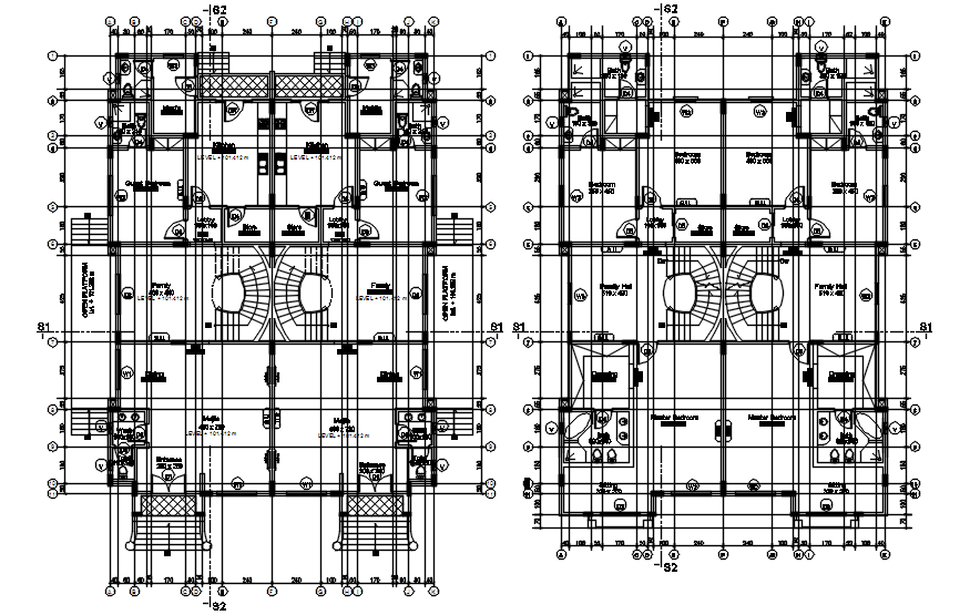
Duplex house plan with detail dimension in dwg file
Home
Categories
Architecture
House Plan
Duplex house plan with detail dimension in dwg file
Uploaded by:
Eiz
Luna
View Profile
View Profile
Description
Duplex house plan with detail dimension in dwg file which provides detail of drawing room, bedroom, kitchen, dining room, bathroom, toilet, etc.
File Type:
DWG
File Size:
686 KB
Category::
Architecture
Sub Category::
House Plan
type:
Gold
Uploaded by:
Eiz
Luna
View Profile
Download
Add to libary
find Latest
Related
Files