LOGIN
HOME
CATEGORIES
UPLOAD FILE
PRICING
HOUSE PLAN
ABOUT US
CONTACT US
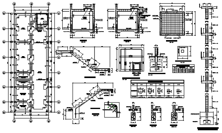
Construction detail in autocad
Home
Categories
Details
Construction Details
Construction detail in autocad
Uploaded by:
K.H.J
Jani
View Profile
View Profile
Description
Construction detail in autocad in autocad it include foundation plan,beam column detail,staircase detail,etc
File Type:
DWG
File Size:
883 KB
Category::
Details
Sub Category::
Construction Details
type:
Gold
Uploaded by:
K.H.J
Jani
View Profile
Download
Add to libary
find Latest
Related
Files