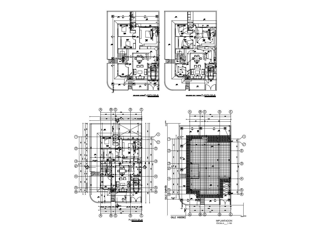
Plan of bungalow 11.80mtr x 15.85mtr with detail dimension in AutoCAD
Description
Plan of bungalow 11.80mtr x 15.85mtr with detail dimension in AutoCAD which includes detail of hall, bedroom, kitchen, dining area, bathroom, toilet, garage, etc it also gives detail of roof plan of the bungalow.

Uploaded by:
Eiz
Luna

