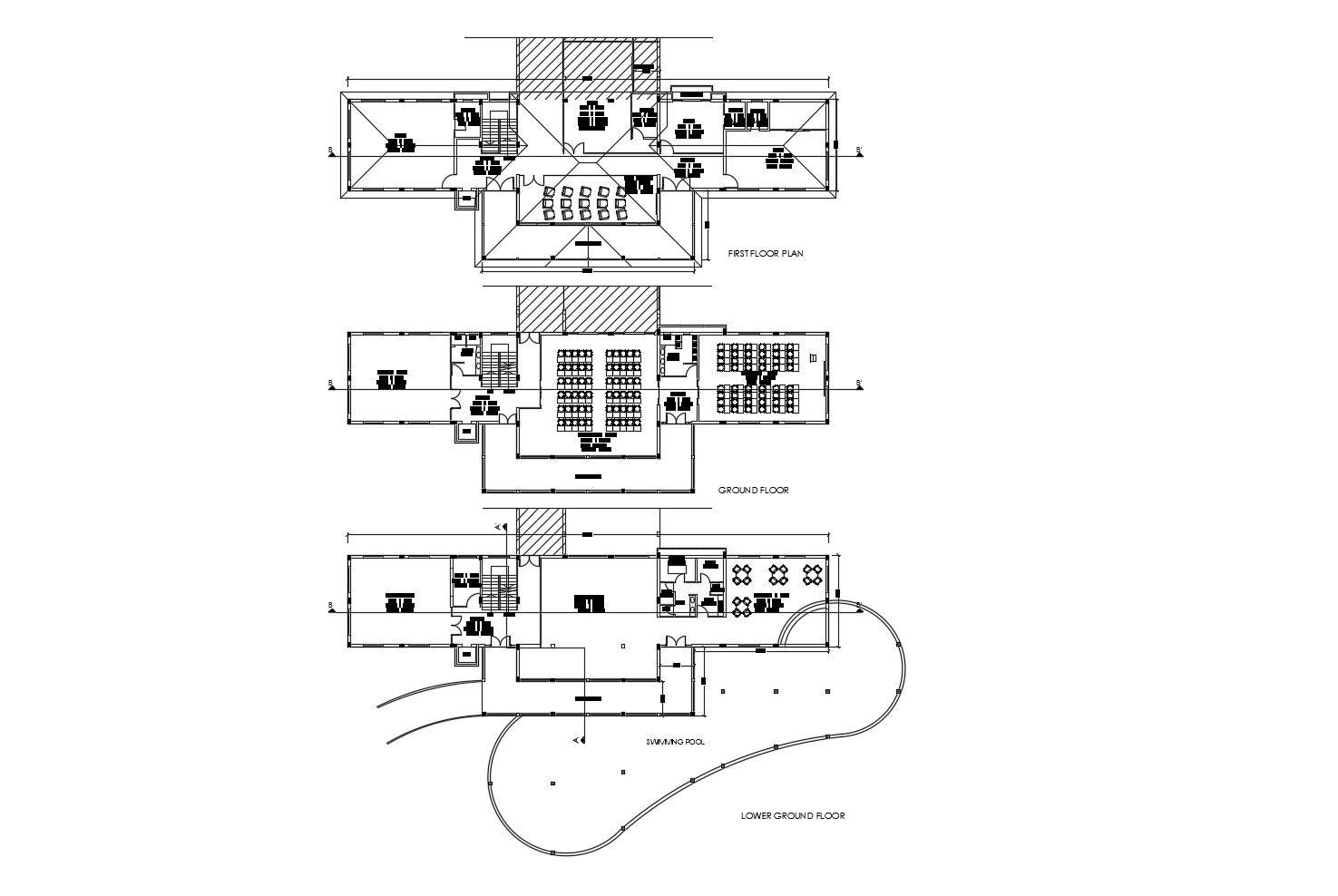
Clubhouse 41.078mtr x 13.96mtr with detail dimension in dwg file
Description
Clubhouse 41.078mtr x 13.96mtr with detail dimension in dwg file which provides detail of restaurant area, gym area, lobby, lounge and bar area, WC and bath, swimming pool, etc. it also gives detail of lower ground floor.

Uploaded by:
Eiz
Luna

