Plan of office design with detail dimension in dwg file
Description
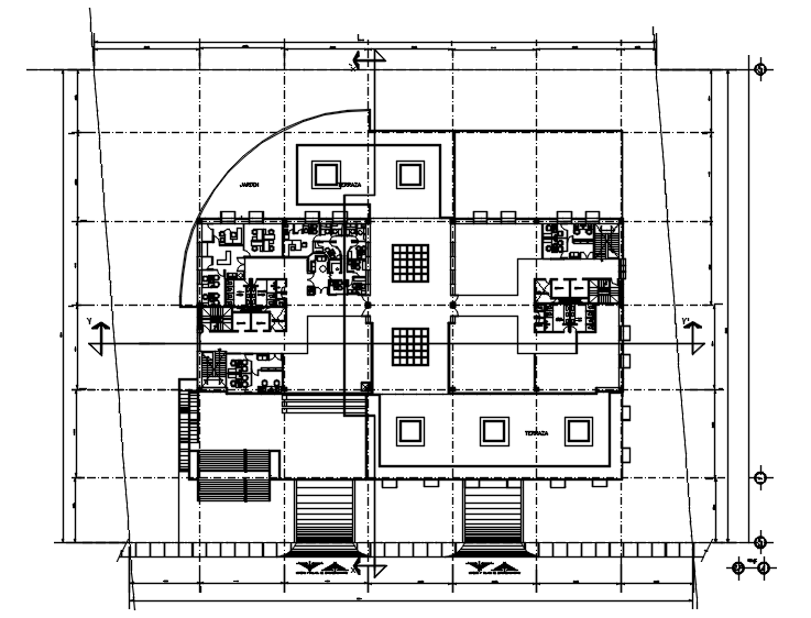
Plan of office design with detail dimension in dwg file which includes detail of reception area, cabins, working area, conference room, washroom and toilet, etc it also gives detail of furniture.

Uploaded by:
Eiz
Luna

