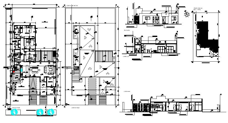
Plan of one storey house with detail dimension in dwg file
Description
Plan of one storey house with detail dimension in dwg file which provides detail hall, bedroom, kitchen with dining room, bathroom, toilet, etc detail of terrace plan, detail of furniture.

Uploaded by:
Eiz
Luna

