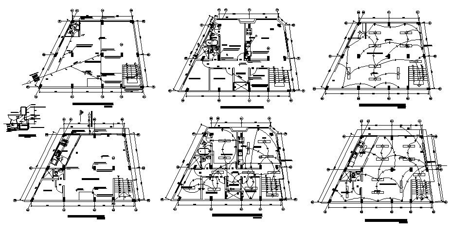
Sanitary layout plan of 2 storey house with detail dimension in AutoCAD
Description
Sanitary layout plan of 2 storey house with detail dimension in AutoCAD which includes detail dimension of bathroom and toilet, etc.

Uploaded by:
Eiz
Luna

Uploaded by:
Luna