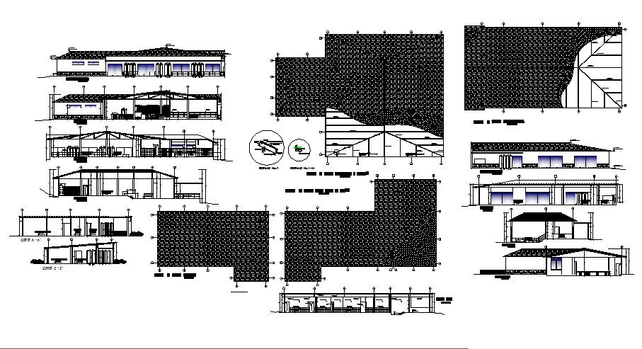
Plan of the commercial building with detail dimension in AutoCAD
Description
Plan of the commercial building with detail dimension in AutoCAD which provides detail of different floor, different section, front elevation, side elevation, back elevation, detail dimension of restaurant area, gym area, kitchen area, etc it also gives full detail of furniture.

Uploaded by:
Eiz
Luna

