Industrial warehouse with detail dimension in AutoCAD
Description
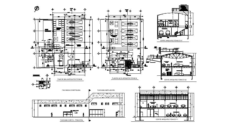
Industrial warehouse with detail dimension in AutoCAD which provide detail of floor level, detail of north side elevation, section, detail of office area, laboratory area, washroom, toilet, etc it also gives detail of location plan.

Uploaded by:
Eiz
Luna

