LOGIN
HOME
CATEGORIES
UPLOAD FILE
PRICING
HOUSE PLAN
ABOUT US
CONTACT US
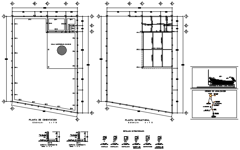
Drawing of office building plan in AutoCAD
Home
Categories
Architecture
Corporate Building
Drawing of office building plan in AutoCAD
Uploaded by:
Eiz
Luna
View Profile
View Profile
Description
Drawing of office building plan in AutoCAD which provide detail of foundation plan, detail of column footing, etc.
File Type:
DWG
File Size:
1.6 MB
Category::
Architecture
Sub Category::
Corporate Building
type:
Gold
Uploaded by:
Eiz
Luna
View Profile
Download
Add to libary
find Latest
Related
Files