Plan of restaurant 23.40mtr x 10.36mtr with detail dimension in AutoCAD
Description
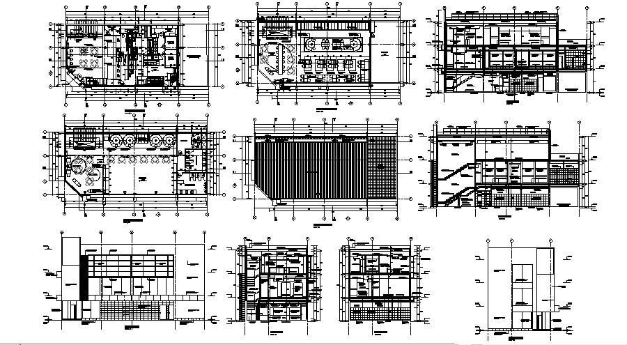
Plan of restaurant 23.40mtr x 10.36mtr with detail dimension in AutoCAD which provide detail dimension of the hall, cafe area, kitchen area, office area, playground, washroom, toilet, etc it also gives detail of different sections.

Uploaded by:
Eiz
Luna
